Academic Work
Personal Work
Background
Academic Work
Personal Work
Background
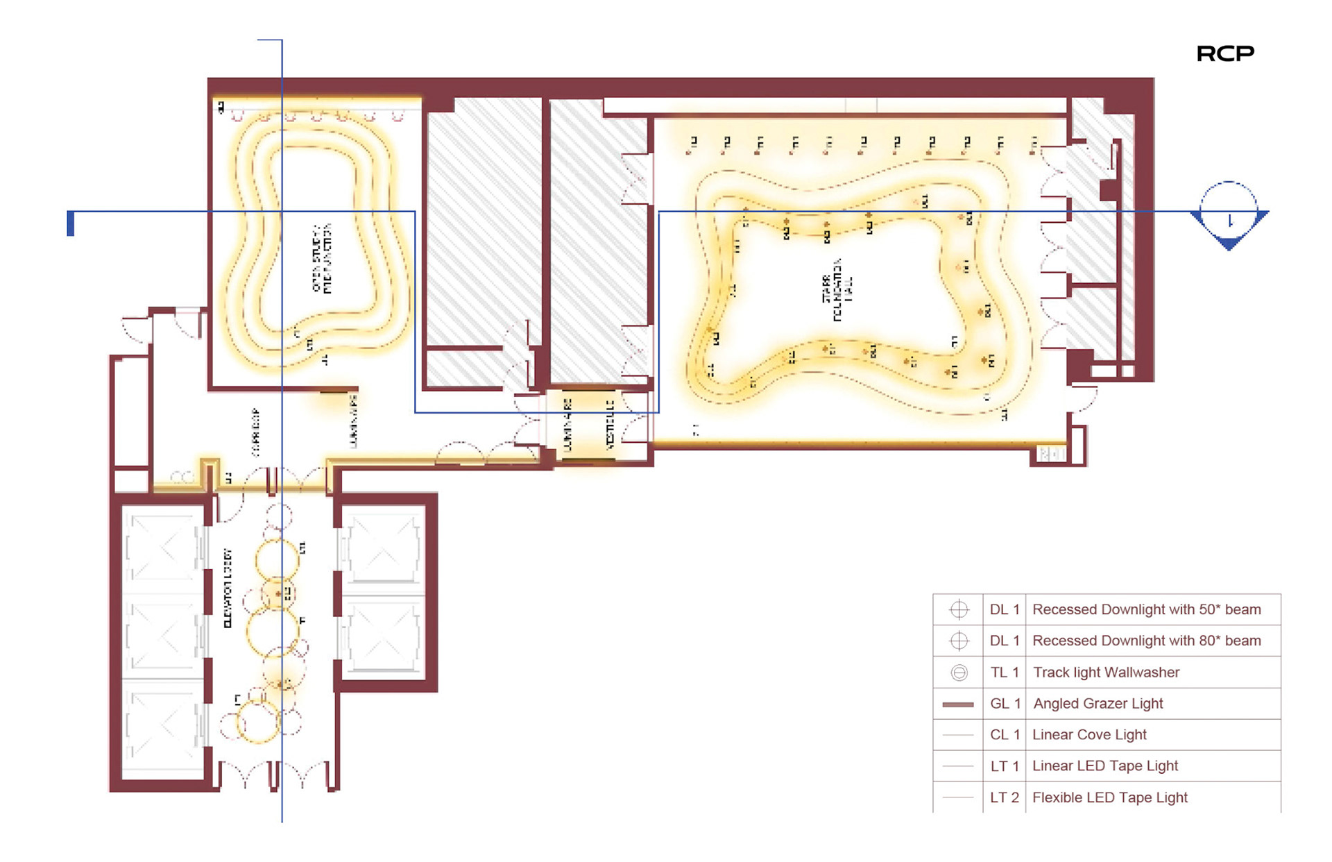
LAYERED ATMOSPHERES
Team Final Project (Lighting Studio 1)
You may also like
NYFA
2025
DAYLIGHTING & MODELING
2025
AGATHOKAKOLOGICAL
2024
AXES
2024
↑
Back to Top